Ver Mapa

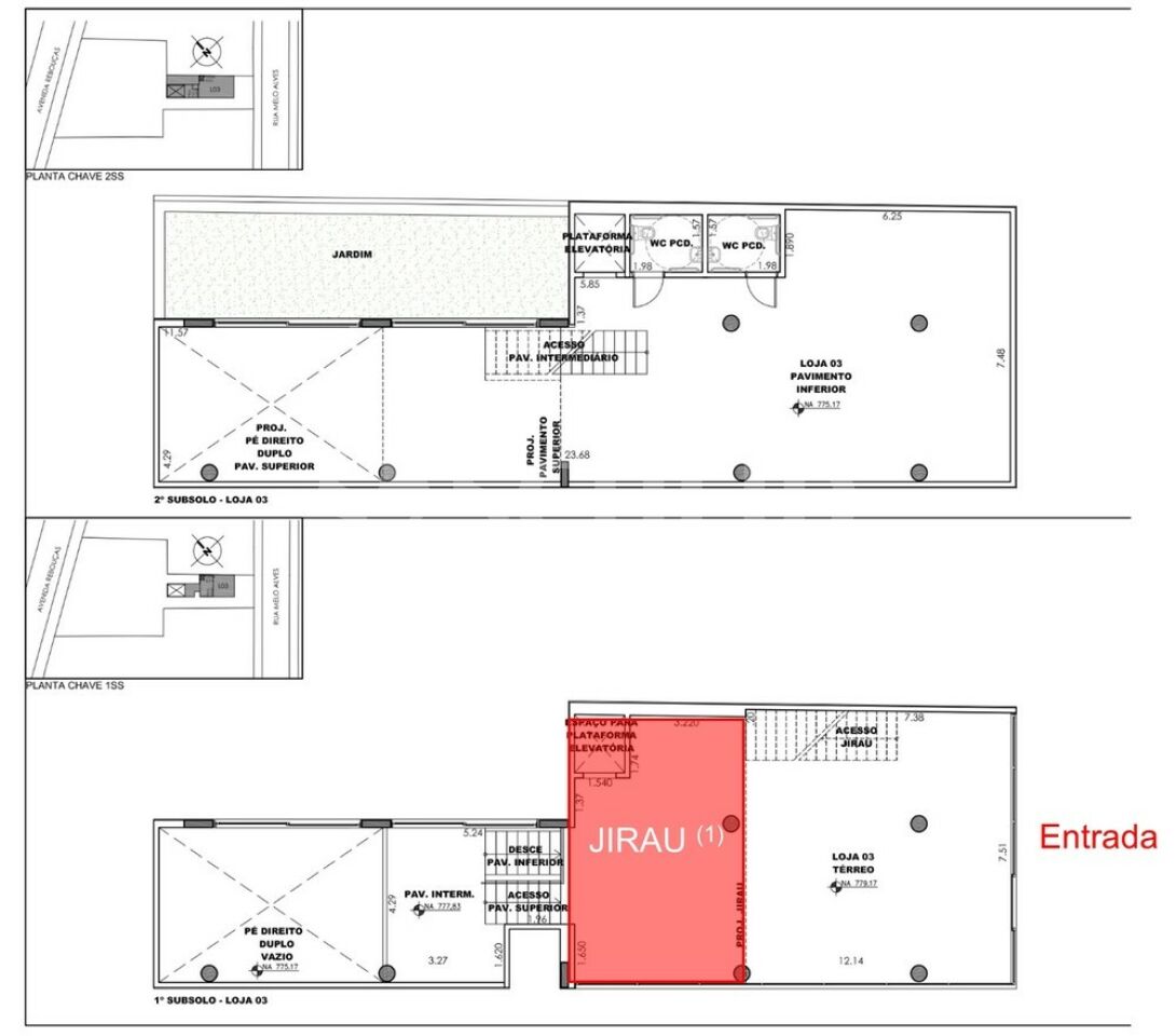
LOJA COMERCIAL, 376,48 METROS NA REBOUÇAS

LOJA COMERCIAL PARA VENDA 376,48 NA AVENIDA REBOUÇAS

Fachada com 7,9 Metros

Entregue em cimento liso desempenado
Concreto aparente e/ou pintura látex, Suvinil, Sherwin Williams e/ou pintura texturizada imitando concreto ou desempenho equivalente
Laje de concreto aparente
2 banheiros entregues com piso em porcelanato, paredes com pintura látex acrílico na cor branco, teto com pintura látex acrílico na cor branco e louças e metais Deca ou de desempenho equivalente
2 vagas para utilitários de uso compartilhado entre as lojas, localizadas no 1º subsolo

Scheid Imóveis, desde 1995 com total transparência e segurança em todos os nossos serviços.